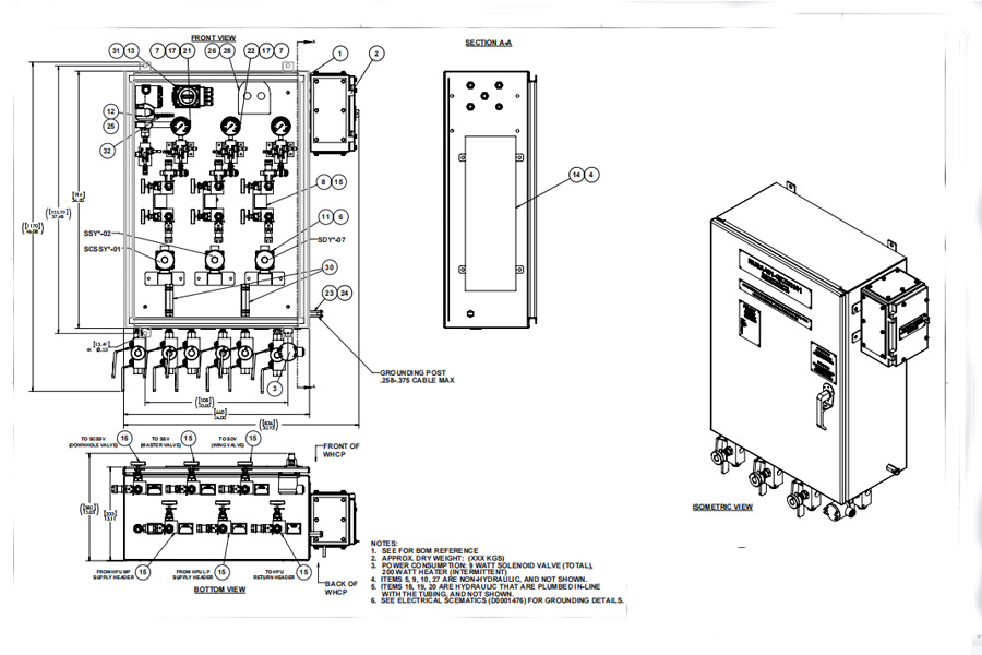
Wellhead control panels / emergency shutdown systems are used for the control, monitoring and safety of surface and subsurface controlled safety valves (typically as SSV, SCSSV) for oil & gas fields to ensure the safety operations of unattended wells/platforms. Operating environment can be onshore, offshore or artificial islands, including the harsh environment such as desert, or the fields that feature high pressure, high-yield and high risk.
·APISPEC6A ·APISPEC14A ·APISPEC14D
·APIRP14B ·APIRP14C ·APIRP500
·APIRP55 ·IEC60529 ·IEC60079
·SY/T0310 ·ASME VIII ·ASMEB 31.3
Pressure Data Acquisition:
The explosion-proof transmitters are used for pressure data collecting & monitoring to hydraulic control loops, casing /oil pipes and other process pipelines.
Temperature Data Acquisition:
The explosion-proof transmitters are used for temp data collecting & monitoring to casing/oil pipes and other process pipelines.
H2S Detecting:
The H2S detecting instruments are employed for the gas density detection and raising the alarm to well fields & panel internal space.
Combustible Gases Detecting:
The gases detector is employed for the gas density detection and raising the alarm to well fields & panel internal space.
RTU:
Used for various signals' data collecting and transmitting to such as pressure, liquid level, temperature, flow rate and valve positions of control panels and well fields.
Solar Power System:
Served as power source for various electrical instruments and components;
N2 Supply:
Mainly served as backup gas source for control panels, such as the driving gasforair-operated pumps and recharging of accumulators.
Wellhead controlling: Single Well/Multi-well control
Control valves: SCSSV, SSV, or other Hydraulic/Pneumatic Valves
Output pressure range: 0~15,000psi
Environment temp: -40~60 ℃
Fusible plug melting temp: 160℉(71℃), 212℉(100℃),255℉(124℃),281℉(138℃)
Explosion-proof grade: Exd II BT4
Protection grade: IP65
Panel material: 316SS


0531-69959201
lqg18653457231
+86-18653457231
No 12111,Jingshi Road, Lixia District, Jinan City, Shandong Province. P.R. China
Professional customer service team, professional after-sale services create a comprehensive high-quality, advanced technology, reliable products, which gives you a strong sense of security.
Professionals, professional skills and precision oil and gas equipment insure that we can provide you with professional product customization service.
The best quality products, strict quality control system and good reputations established Saigao product's irreplaceable place.
Superb technical team with continuous technological innovation, closely follow the market's trend help you to create the highest performance products.
English
日本語
français
Español
русский
português
العربية
tiếng việt
ไทย
Polska
română